Blokhutten en schuren
Projectcategorieën
Laatste projecten
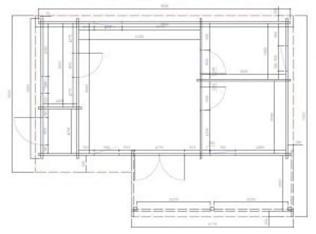
Chalet Holiday

Maatwerk model “Chalet Holiday”
-70mm vuren blokhuthout-ca. 900x500cm orenmaat
-trekstangen in het hout
-1 enkele vuren dichte deur iso kwaliteit
-1 dubbele vuren deur half glas iso kwaliteit
-4 vuren draai/kiep ramen iso kwaliteit
-1 vuren badkamer/wc raam iso kwalitiet
ISO-kwaliteit deuren/ramen:
-Extra dik isolatie glas
-Draaiende delen van maar liefst 64mm dik
-3-Punts sluiting op deuren
-Draai/kiep systeem op openende ramen
-Aluminium waterslag profielen
-Extra tochtstrippen
-Luxe beslag en zware scharnieren
-3 enkele vuren binnen deuren standaard kwaliteit
-Plat dak incl. EPDM dakbedekking, spraylijm en 2x onderuitloop
-Dakoverstek achter- en zijkanten ca. 20cm vanaf de wand, aan de voorzijde met een breedte van ca. 550cm 200cm overstek, overgebleven ca. 60cm vanaf de wand
-3 staanders 12x12cm onder overstek van 200cm
-Aluminium hoektrim
-Ijzerwaren pakket + bouwbeschrijving